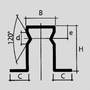
ARCARECCIO TIPO FIAT A GOLE RIENTRATE

EN 10025

  * Autorizzo al trattamento dei dati personali. Leggi Informativa.
Misure di uso corrente
Spessore mm
BxHxCxExD 22,533,5
35x50x28x22x24 3,02 3,75
35x60x30x19,5x17 3,30 4,11
35x75x30x19,5x17 3,76 4,70
40x100x26,5x35x34 5,12 6,70
50x120x40x35x34 7,10 8,50
60x100x30x35x34 6,13 7,33
60x100x42x35x34 6,60 7,89
60x105x42x35x34 6,80 8,12
60x120x30x35x34 6,91 8,27
80x120x40x35x34 7,69 9,21
80x150x43,5x47x40 9,03 10,78 12,51
82x150x42,5x47x40 9,03 10,78 12,51

Hai domande?
Vuoi sottoporci il tuo caso per una valutazione?

Compila e invia il modulo qui sotto

* campi obbligatori

  * Acconsento al trattamento dei dati a norma del Regolamento UE 2016/679. Informativa completa
Scurati S.p.A
Via Marmolada, 10 - 20095 Cusano Milanino (MI)
E-mail +39 02 66 59 941 +39 02 66 40 01 32